AutoCAD
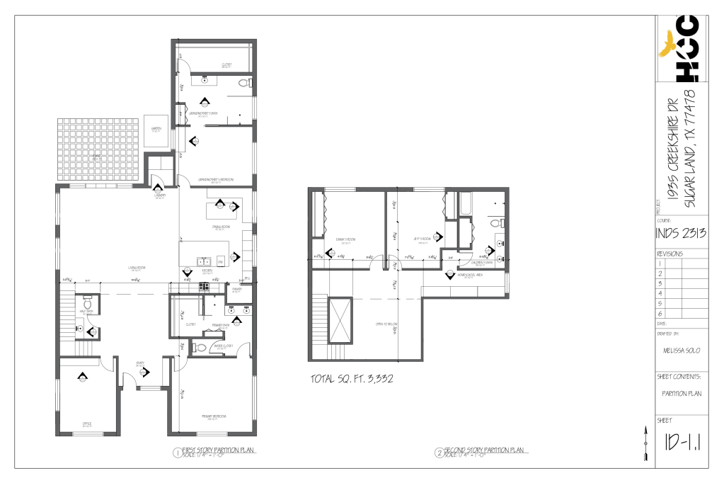
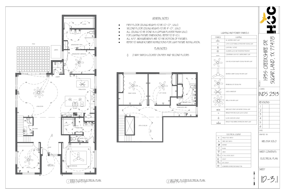
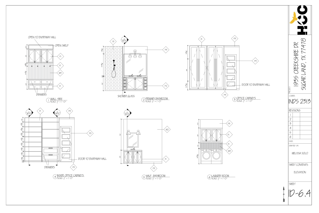
This section features a complete set of construction documents developed in AutoCAD for a residential design project. The drawings demonstrate my technical proficiency in space planning, drafting standards, and attention to detail. Included are floor plans, elevations, sections, and schedules that reflect my ability to communicate design intent clearly and accurately to contractors and other industry professionals.
















