Residential Studio
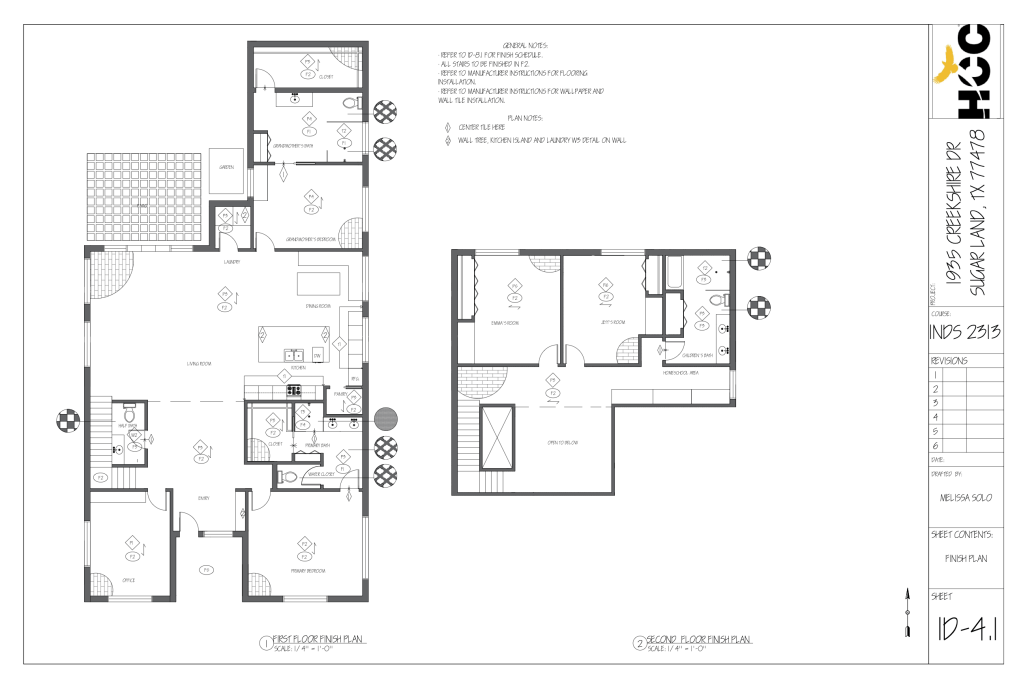
This residential project, Adagio, explores the design of a suburban family home that balances comfort, functionality, and connection to nature. The concept draws inspiration from the ballet term adagio, representing slow, graceful movement and a sense of ease within the home. Designed for a multigenerational family, the space integrates both shared and private areas to support daily living, work, and learning. The project includes the full design development process. From programming and schematic design to material selections, construction documents, and 3D renderings, this residential project demonstrates my ability to thoughtfully plan spaces, develop detailed documentation, and visually communicate design ideas through digital modeling.












































