Revit
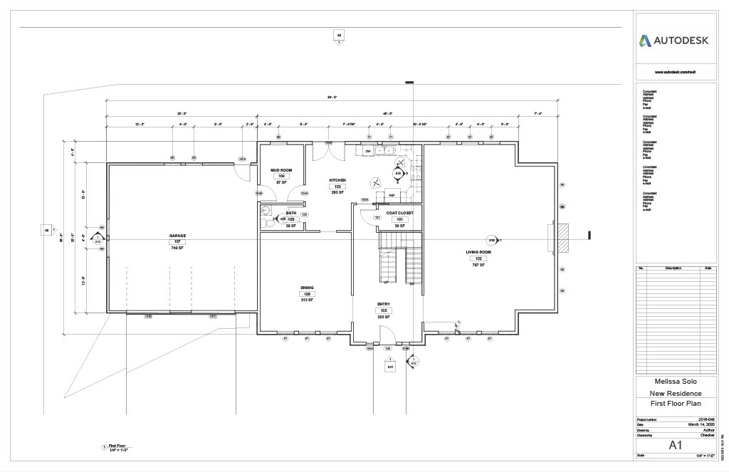
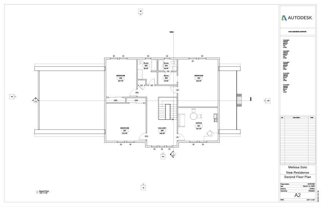
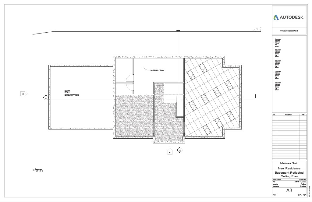
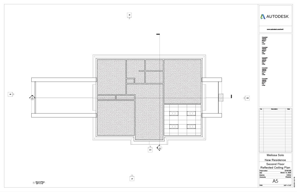
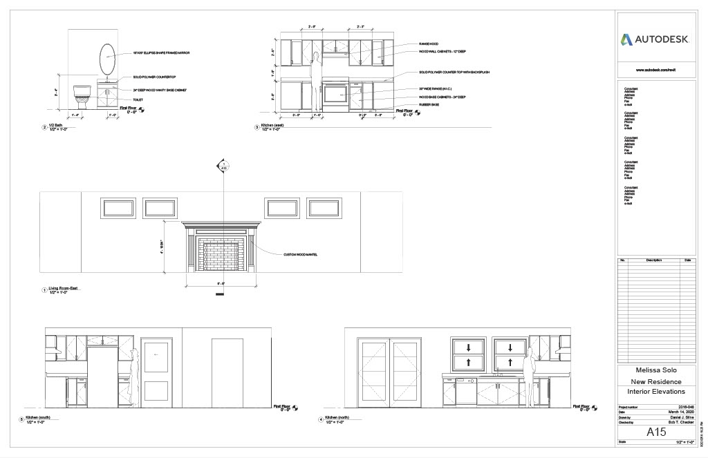
This project features a full set of construction documents, highlighting structural details, materials, and interior elevations. Accompanying the technical drawings are three high-quality rendered images that bring the design concept to life, blending functionality with aesthetic vision.
























